I would (did) make the holes about 2mm bigger than they needed to be.
Announcement
Collapse
No announcement yet.
Suspension/body Lifts Info!!!!!!
Collapse
X
-
I did that too. I put 12mm holes in the brackets I made but the two side bolts, under the front wheel arches didn't afford me any play. It leaves about a 15mm gap from a side view so I then maintained that gap all round so that it was even. I suppose you could elongate those holes a little for adjustment.Originally posted by Albannach View PostI would (did) make the holes about 2mm bigger than they needed to be.
While I'm here, does anyone have a dimensioned drawing of the panhard drop bracket?
Comment
-
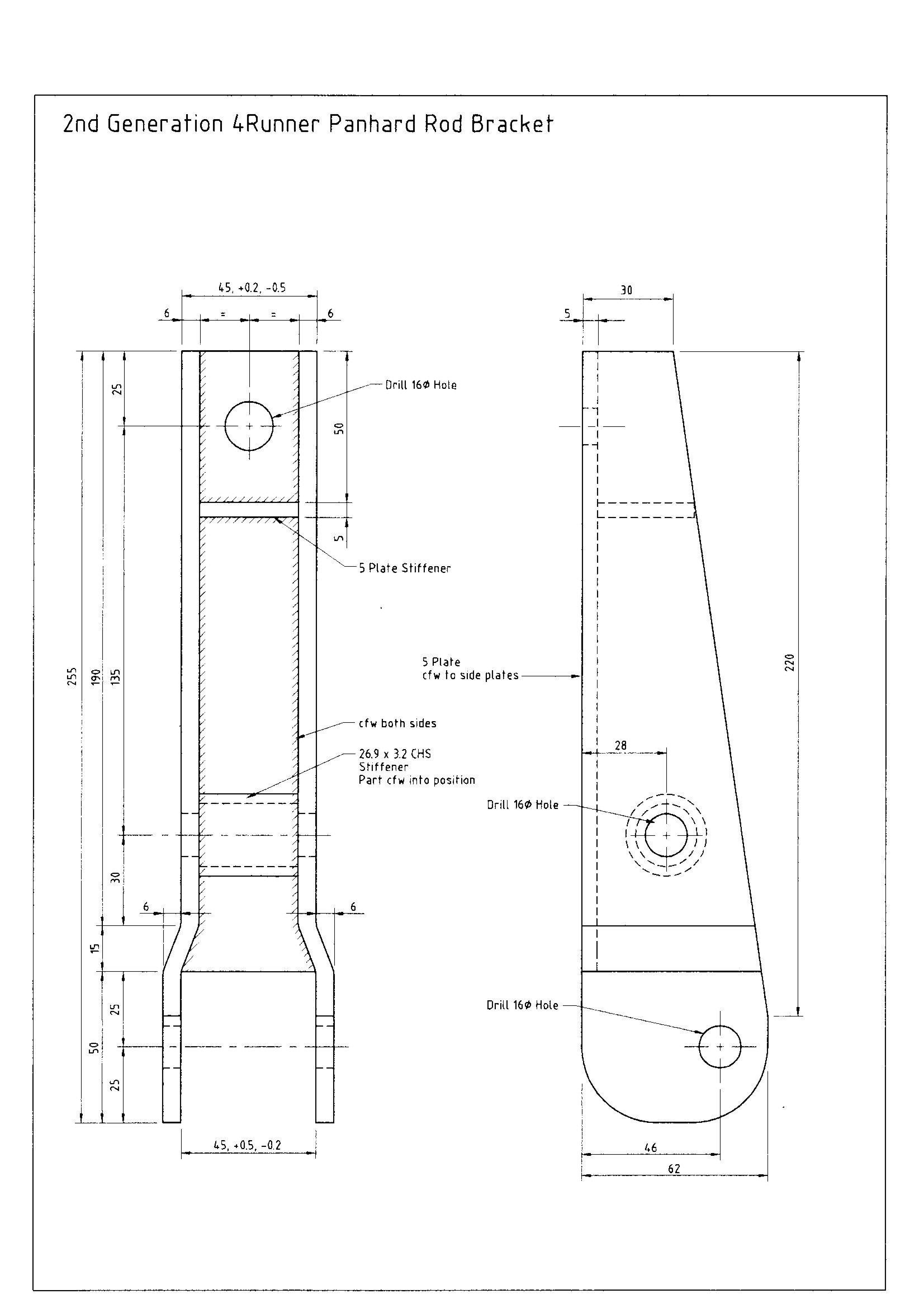
This came from next door. Ref id: 57. Mine was made from this drawing.Originally posted by Bonk View PostI did that too. I put 12mm holes in the brackets I made but the two side bolts, under the front wheel arches didn't afford me any play. It leaves about a 15mm gap from a side view so I then maintained that gap all round so that it was even. I suppose you could elongate those holes a little for adjustment.
While I'm here, does anyone have a dimensioned drawing of the panhard drop bracket?
http://daemon4x4.org/portal/downloads.php?dcid=13" Time wounds all heels ".
Comment
-
Originally posted by Bonk View PostI can't open that file on my iPad. Would someone be kind enough to post the actual drawing please?
I've made about ten brackets using this drawing......
http://www.hiluxsurf.co.uk/attachmen...3&d=1105209485
Comment
-
Sorry to dig up an old thread but I am struggling to get a clear picture of what needs done with 2" rear suspension lift
I have got the 2" springs and 2" shocks here from roughtrax and just about to go and fit...you may be able to help with a few questions....
I have searched through the various threads on this lift and this big thread but it has confused me even more as the likes of this thread states you need to drop pan hard, disconnect all brake lines and lsv and more to fit the suspension but then later in the thread is seems to say that you don't need to do any of this.
My questions are...
Can I simply jack the 4runner up and remove springs with clamps and remove shocks without doing anything else?
Is there going to be an issue with this pan hard rod throwing the back out of alignment with a minimal lift like this?
Do I have to do anything with the lsv apart from adjust once the new suspension is on to get the balance right?
I'm going up to start this stuff now so will probably find out the hard way lol
I appreciate any advice that helps clear this up
Comment
-
i done the shocks and springs first, then a while later (a year?) done the rest,
once done the lsv i did noticed a difference on braking, about the panard rod its just if you like things straight, otherwise it wont make difference (you arent doing 4" or more to really need it)the wolf is always bigger when you are scared!!
Comment
-
I found out the hard way lol....although when I say that it was pretty straight forward.
Just to clarify for future readers when fitting the 2" lifted springs and shocks from roughtrax you can simply jack it up and let the rear axel hang and yoU should then be able to remove springs (with clamps) and shocks without disconnecting anything else :-)
Can someone clarify if I actually need to adjust the lsv now I have lifted springs?
Comment



Comment