Well finaly got the drop bracket on (5 months after the lift) and the panhard rod sits nice and level now, and it's taken all the strain off the link brackets, had to rachet the axle accross with a loading strap before, now it slots in just perfect.
		
							
						
					Announcement
				
					Collapse
				
			
		
	
		
			
				No announcement yet.
				
			
				
	
panhard rod
				
					Collapse
				
			
		
	X
- 
	
	
		
		
		
		
		
		
		
	
	
 Where did you get the bracket from? I tried to find one a few years back but drew a blank? The problem with having my panard rod on a diagonal is draws the propshaft in a bit too close to the fuel tank cover. About 1" movement sideways causes them to touch-easily done offroad!Originally posted by GreeboWell finaly got the drop bracket on (5 months after the lift) and the panhard rod sits nice and level now, and it's taken all the strain off the link brackets, had to rachet the axle accross with a loading strap before, now it slots in just perfect.
 
 NevillefLast edited by laser_jock@work; 7 January 2005, 14:43._________________
 Nevillef
 Comment
- 
	
	
		
		
		
		
		
		
		
	
	
 It was just a 2" lift, and no it was an off the shelf bracket.
 got it from Pro-Comp, took a bit to convince the guy at Explorere that they did have one on there Pro-Comp listings. (seen them on a few American sites) but they eventualy came up with the goods.
 
 If you want one ask for a "Rear track bar relocation bracket" asking for a panhard rod drop bracket just seem to confuse him . .
 
 I think the part no is ..........90-1268
 Cost £38 inc vat and delivery.
 
 Your right about the prop shaft. i also did it to take the strain off the link brackets, after the lift had to use a loading strap pull the axle accross to put it back in the original bracket, figured that much strain cant be a good idea and sooner or later the brackets or bushes are gonna suffer.
 
 
 And with impecable timing.........
 http://www.yotasurf-online.co.uk/pub...ad.php?t=10082Last edited by Greebo; 7 January 2005, 19:57.mudnstuff.me.uk
 Comment
- 
	
	
		
		
		
		
		
		
		
	
	
 I'm a custard donut monster 
 Comment
- 
	
	
		
		
		
		
		
		
		
	
	
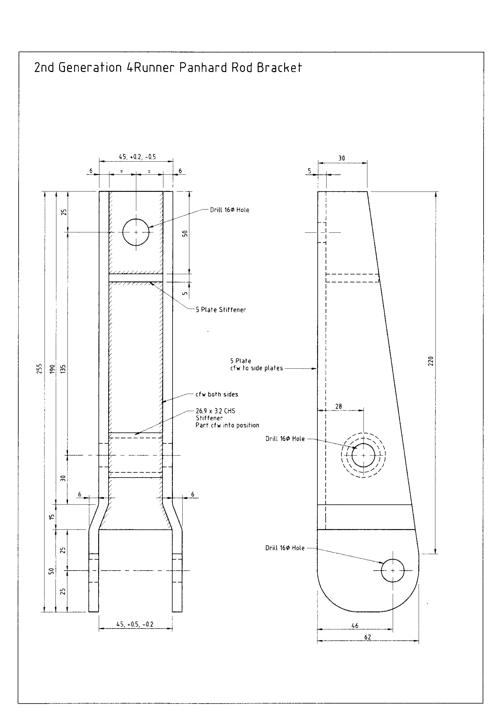
 Thanks for the drawing, it's a bit more complex than I thought but should be able to get them made out of solid when I get back to work.......................... .leave it with meOriginally posted by kazam401Greebo,
 
 If you can give me some dimentions for the bracket I can get some made up at work.....................save some other members grief and ££
 Comment
- 
	
	
		
		
		
		
		
		
		
	
	
 If they work out cheaper than Pro-Comp (just quoted me £32.50) then put me down for one.Originally posted by kazam401Thanks for the drawing, it's a bit more complex than I thought but should be able to get them made out of solid when I get back to work.......................... .leave it with me
 
 Thanks
 
 Nevillef
 Comment
- 
	
	
		
		
		
		
		
		
		
	
	
 Greebo, you had to add some bolts to get that to fit, and what looks like a hole to drill too... any chance of some details of the bolt sizes and the hole size and position...? Just got my drop bracket delivered for £40.00 all in. They did send a warranty replacement 2" plus drivers side rear coil as well (but that is another story entirely)...Originally posted by GreeboIf you want one ask for a "4Runner/Surf Rear track bar relocation bracket" asking for a panhard rod drop bracket just seem to confuse him . .
 
 I think the part no is ..........90-1268
 Cost £38 inc vat and delivery.
 
 
 
 And with impecable timing.........
 http://www.yotasurf-online.co.uk/pub...ad.php?t=10082
 
 andyL
 Comment
- 
	
	
		
		
		
		
		
		
		
	
	
 Hi AndyOriginally posted by AndyLalaGreebo, you had to add some bolts to get that to fit, and what looks like a hole to drill too... any chance of some details of the bolt sizes and the hole size and position...? Just got my drop bracket delivered for £40.00 all in. They did send a warranty replacement 2" plus drivers side rear coil as well (but that is another story entirely)...
 
 andyL
 When installing mine, i had to drill this hole also. All i did was bolt the bracket in. Take the right hand wheel off, so you can get a drill at the original rod bracket. This bit is very precise. I placed my thumb where i wanted to drill and my index finger on the other side and into the hole in the new bracket.  I opened and closed my fingers a couple of times and drilled where my thumb matched my finger.  Best to close your eyes when matching them up as your eyes might lead you astray.   When i drilled the hole it matched up perfectly.  Think it was a 12mm bit!   You may think i'm insane, but it worked for me. I placed my thumb where i wanted to drill and my index finger on the other side and into the hole in the new bracket.  I opened and closed my fingers a couple of times and drilled where my thumb matched my finger.  Best to close your eyes when matching them up as your eyes might lead you astray.   When i drilled the hole it matched up perfectly.  Think it was a 12mm bit!   You may think i'm insane, but it worked for me. Derek Derek : :  
 1990 Hilux Surf SSR Ltd
 [B][COLOR=DarkOrange][U]S[/U][/COLOR][/B]ave [B][COLOR=DarkOrange][U]U[/U][/COLOR][/B]p [B][COLOR=DarkOrange][U]R[/U][/COLOR][/B]eadies [B][COLOR=DarkOrange][U]F[/U][/COLOR][/B]ast. Cause you're gonna need them! 
 Comment
- 
	
	
		
		
		
		
		
		
		
	
	
 Delboy, you are beginning to frighten me... I was thinking the very same thing... Just need to find some "suitable" bolts... usual over engineered type solution...Originally posted by DelboyHi Andy
 When installing mine, i had to drill this hole also. All i did was bolt the bracket in. Take the right hand wheel off, so you can get a drill at the original rod bracket. This bit is very precise. I placed my thumb where i wanted to drill and my index finger on the other side and into the hole in the new bracket. I opened and closed my fingers a couple of times and drilled where my thumb matched my finger. Best to close your eyes when matching them up as your eyes might lead you astray. When i drilled the hole it matched up perfectly. Think it was a 12mm bit! You may think i'm insane, but it worked for me. I placed my thumb where i wanted to drill and my index finger on the other side and into the hole in the new bracket. I opened and closed my fingers a couple of times and drilled where my thumb matched my finger. Best to close your eyes when matching them up as your eyes might lead you astray. When i drilled the hole it matched up perfectly. Think it was a 12mm bit! You may think i'm insane, but it worked for me. 
 
 andyL
 Comment



 
							
						

 
 
Comment